指南经验网
首页
美食营养
游戏数码
手工爱好
生活家居
返回
指南经验网
首页
美食营养
游戏数码
手工爱好
生活家居
健康养生
运动户外
职场理财
情感交际
母婴教育
时尚美容
搜索
axure弹出框,弹出后并关闭
2024-10-28 19:10:59
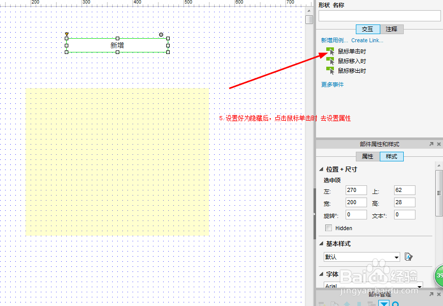
1、AXURE弹出框弹出的步骤
2、AXURE弹出框隐藏的步骤
相关推荐
WPS幻灯片中如何调整形状图层关系
如何使用css实现鼠标滑过块上移并且出现阴影
JS怎样替换a标签的链接值?
oCam(屏幕录像软件)怎么设置摄像头属性
CamtasiaStudio渲染/生成优酷/土豆超清高清视频
猜你喜欢
2011是什么年
泡辣椒的腌制方法
养殖行业
梧桐树叶像什么
女人的隐私都长什么样
恍惚是什么意思
广告设计需要学什么
舌头白苔厚是什么原因
什么是个人独资企业
运动服
猜你喜欢
ss14是什么二极管
脑供血不足什么症状
油性皮肤用什么洗面奶
cpk是什么意思
糖蒜怎么腌制
梗概是什么意思
加油稿运动会
运动鞋品牌排行
诚恳的近义词是什么
kj是什么