内脚手架搭设规范是怎样的,有没懂行的来指教一下
内脚手架搭设规范为:
1、脚手架外侧防护必须使用合格的密目式安全网封闭。外架上应设置公司标志(“公司”横橛载醑砘幅)和宣传标语。保证外架协调美观,体现企业特色。

2、杆件设置
(1)架体阴阳转角处应设置4根立杆,大横杆应连通封闭。主节点处必须设置纵横向水平杆。

(2)立杆除顶层顶部外必须采用对接,大横杆在架体转角外可以搭接,剪刀撑必须搭接。

(3)剪刀撑、连墙件必须随外脚手架同步搭设、同步拆除。严禁后搭或先拆。

3、立杆基础
(1)落地式脚手架搭设高度不宜超过35m,高度在35~50m时必须采取卸荷措施,高度大于50m时必须采取卸荷措施并对专项方案。

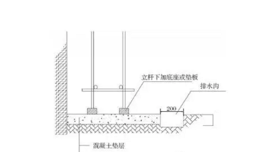
(2)脚手架基础平整、夯实、混凝土硬化,基础应采用100mm厚C25混凝土硬化,立杆底部设置底座或垫板。垫板应采用长度不于2跨、厚度不小于50mm、宽度不小于200mm的木垫板。

(3)落地式脚手架必须设置纵、横向扫地杆,纵向扫地杆宜采用直接扣件固定在紧靠纵向扫地杆下方的立杆上。当立杆基础不在同一高度时必须将高处的纵向扫地杆向低处延长两跨与立杆固定,高低差不应大于1m,紧边坡上方的立杆轴线道边坡的距离不小于500mm。

(4)脚手架基础应考虑周边设有排水措施,脚手架底座底面标高应高于室外自然地坪50mm,立杆基础外侧设置截面不小于200mm×200mm的排水沟,保证脚手架基础不积水。

参考资料:百度百科-脚手架