指南经验网
首页
美食营养
生活百科
知识问答
生活知识
返回
指南经验网
首页
美食营养
游戏数码
手工爱好
生活知识
生活百科
健康养生
运动户外
职场理财
情感交际
母婴教育
时尚美容
知识问答
更多知识
搜索
在EPLAN里面添加星三角降压启动的启动按钮
2026-05-19 15:16:24
1、步骤一:打开前面设计好的电路图,如下图所示。
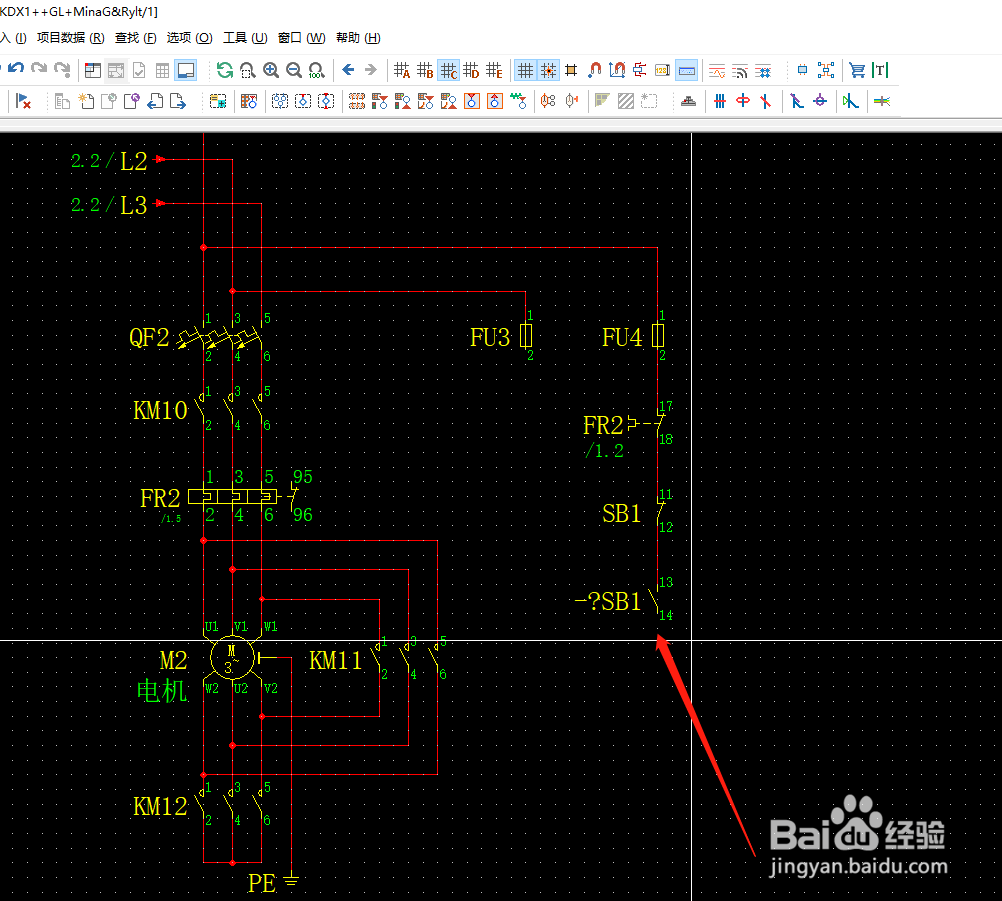
2、步骤二:首先添加启动按钮的元器件符号,如下图所示。
3、步骤三:修改启动按钮的元器件符号名称,如下图所示。
相关推荐
在EPLAN里面完善星三角降压启动的控制电路
阅读量:155
西门子S7系列PLC设备联网监控方案及其比较
阅读量:156
在EPLAN里面添加星型连接三相变压器
阅读量:24
在EPLAN里面添加五极带CEE插座
阅读量:57
在EPLAN 里面设计两极熔断开关电路
阅读量:66
猜你喜欢
硬盘什么意思
质朴的意思
降息意味着什么
趋之若鹜的意思
卖萌什么意思
赶鸭子上架的意思
提拉米苏的意思
鬼畜是什么意思
卓有成效的意思
支那是什么意思
猜你喜欢
基金是什么意思
嬲是什么意思
crane是什么意思
徜徉的意思
摘要是什么意思
一瞬间的意思
喜气洋洋的意思
正本清源什么意思
ipqc是什么意思
泰国有什么好吃的