CAD怎么设计一套橱柜(第六课)
1、打开上节课的文件 我们继续学习

2、我们可以看到这边还剩下993MM

3、再偏移出来580mm 如图所示

4、我们得到还剩下的413mm

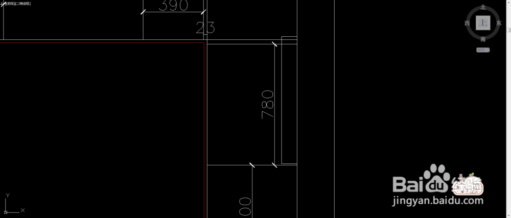
5、分成两份 一个转角封板 留下23mm

6、剩下的390作为转角柜柜门

7、偏移580mm

8、得到如下图所示

9、偏移出20mm 作为见光板

10、做个高柜放蒸烤箱 尺寸为600mm

11、还剩余810mm

12、柜体做成780mm如图所示

13、转角封板为30mm

14、别忘了做成转角柜

15、给高柜做好标注

16、这样我们的地柜布局就画好了
