CAD怎么设计一套橱柜(第十二课)
1、打开我们上节课所学习的学习文件

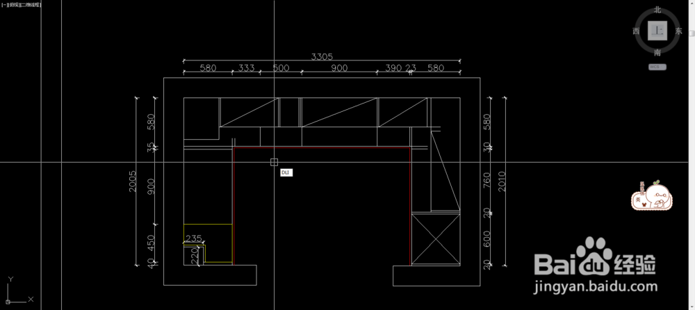
2、下面我们来标注吊柜尺寸 输入DLI标注快捷键

3、同样 我们标注好第一个尺寸后不要点击任何地方

4、接着输入DCO连续标注的快捷键

5、标注哪里的尺寸点哪里

6、标注完这一边点击键盘上的ESC键就可以了 注意不能拐弯标注

7、高柜这边呢也是同样的办法标注

8、我们看到两个20里的太近重叠了 这样看不清楚了

9、我们点击其中一个 如图所示

10、这样就分开了 如图所示 我们能一目了然

1、打开我们上节课所学习的学习文件

2、下面我们来标注吊柜尺寸 输入DLI标注快捷键

3、同样 我们标注好第一个尺寸后不要点击任何地方

4、接着输入DCO连续标注的快捷键

5、标注哪里的尺寸点哪里

6、标注完这一边点击键盘上的ESC键就可以了 注意不能拐弯标注

7、高柜这边呢也是同样的办法标注

8、我们看到两个20里的太近重叠了 这样看不清楚了

9、我们点击其中一个 如图所示

10、这样就分开了 如图所示 我们能一目了然
